Maîtrise d'œuvre structures et plans d'exécution
Lycée Schoelcher - Bâtiments sur isolateurs

| Situation | Fort-De-France (Martinique) |
| Maître d'ouvrage | Collectivité Territoriale de Martinique |
| Assistant ou Mandataire | SODEM |
| Travaux TCE (valeur 2021) | 71,2 M€ HT |
| Surface | 18 355 m2 shon |
| Architecte | Agence NICOLAS - Pointe-à-Pitre |
| Mission | Maîtrise d'œuvre structures et plans d'exécution |
| Livraison | 2021 - travaux en cours d'achèvement |
| Particularités techniques | Protection par isolateurs parasismiques Topographie complexe Sous-sol complexe Grandes portées |
Le Lycée Schoelcher est composé de 13 bâtiments. Il abrite des
fonctions aussi diverses que salle polyvalente, salle de théâtre, cuisines,
restaurant, bureaux, gymnase et enseignement.
Des préaux métalliques monumentaux sont disposés devant les
barres d’enseignement.
La topographie et la géotechnique sont complexes avec un
dénivelé d’environ 15 m entre les diverses plateformes de bâtiments, et 3 zones
géotechniques bien distinctes. La conception des blocs structuraux a donc été être adaptée à ces conditions, avec un panachage
de 4 types de fondations.
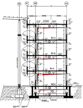
Les bâtiments d’enseignement en
R+2 et R+3 sont contreventés en superstructures par les façades ajourées dans
la direction longitudinale et par des voiles transversaux.
Conformément au cahier des charges sismique imposé par maître d’ouvrage les 5 bâtiments d’’enseignement sont disposés sur isolateurs. Le dispositif d’isolateurs et d’amortisseurs est situé en infrastructure enterrée. Il repose sur des fondations en semelles filantes reliées par un réseau bidirectionnel de longrines.
Coupe longitudinale sur infrastructure des isolateurs
Le corps central en béton des bâtiments d’enseignement
présente un parti quasi-régulier aux sens des règles EC-8. Des trames de 4.20 m ou 5.00 m rythment
les structures, qui sont décomposées en plusieurs blocs d’environ 7.50 m ou 10.50 m de largeur entre
axes, et de 44 à 46 m de longueur. Ces blocs unitaires sont rectangulaires, et
sont composés de voiles périphériques de 18 cm d’épaisseur.
Les bâtiments sont recouverts par une dalle en béton (munie
d’une étanchéité), assurant une protection maximale aux ouragans, et faisant
diaphragme indéformable vis-à-vis des efforts horizontaux.
Conformément aux prescriptions de l’EC-8-1 article 10, les
superstructures sont le plus régulières possibles, et d’une rigidité plus
importante que le système d’isolation à la base. Le contreventement
longitudinal est assuré par les trumeaux entre ouvertures, reliés rigidement
aux linteaux et allèges faisant poutres. L’ensemble des trumeaux et linteaux+allèges dans le plan des façades longitudinales
confère un fonctionnement de type portiques constitués d’éléments de grande
section.
Le contreventement transversal est assuré par des voiles en pignon et en intérieur, disposés parcimonieusement, de façon à conserver à l’ensemble des possibilités suffisantes de modularité et d’évolutivité des espaces.
Le gain mécanique obtenu par la présence des isolateurs et
des amortisseurs permet de dimensionner les superstructures avec des efforts
réduits, malgré l’adoption d’un comportement restant dans le domaine élastique,
c'est-à-dire q=1.00 à 1.50.
Les grands déplacements (13 cm dans toutes les directions)
de chaque bloc exigent la prise de dispositions particulières au droit des
jonctions entre bâtiments. Entre deux bâtiments sur isolateurs les ouvertures
de joints peuvent varier lors d’un séisme de 3 à 29 cm.













Détails et vue d’ensemble
